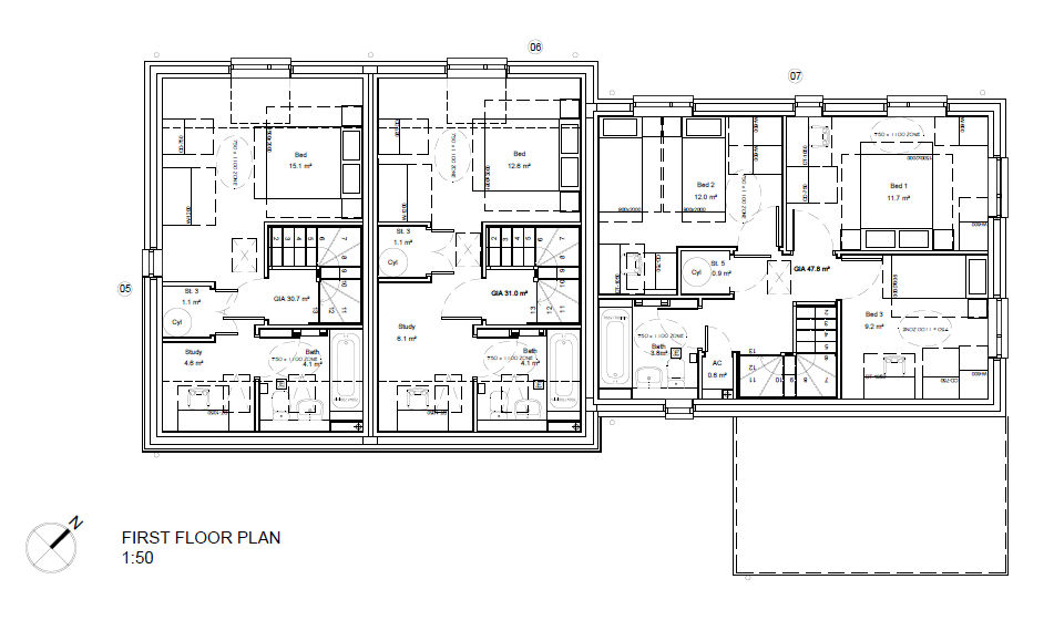
7 Hitchcock Close Video, layouts and photos We are so pleased to be able to share with you a video, plans and photos of no 7 Hitchcock Close The layouts 5 to 7 Hitchcock Close The Photos